Apartament w zabytkowej kamienicy ul. Św. Jana

Mieszkanie na sprzedaż
3 960 000,00 PLN , Pow. 124,44 m2
Drukuj ofertę
Drukuj ofertę
Typ nieruchomości:
Mieszkanie
Powierzchnia:
124,44 m2
Typ transakcji:
sprzedaż
Liczba pokoi:
3
Lokalizacja:
Kraków Stare Miasto , św. Jana
Rok budowy:
1800
Piętro:
2 na 4
Numer oferty:
500073
Cena za m2:
31 822,57 PLN
Są apartamenty, które od pierwszego kroku dają poczucie spokoju i porządku. Tu nic nie jest przypadkowe: proporcje, światło, materiały i rytm wnętrz prowadzą w sposób naturalny.

Ten apartament w Pałacu Przebendowskich, zabytkowej kamienicy przy ul. św. Jana to propozycja dla osób, które w centrum Krakowa szukają ciszy, jakości i autentycznego kontaktu z architekturą, a nie dekoracyjnej stylizacji.

Kontekst miejsca
Apartament mieści się w zabytkowej kamienicy - Pałacu Przebendowskich, obiekcie z połowy XVIII wieku, wpisanym do rejestru zabytków i położonym w obrębie historycznego Starego Miasta.
Kamienica wyróżnia się elegancką bryłą i elewacją, reprezentacyjnym historycznym wejściem, przestronną klatką schodową oraz zadbanym dziedzińcem. Przygotowany został również projekt przebudowy dziedzińca wraz z koncepcją planowanej windy.

Charakter i styl wnętrza
Apartament przeszedł generalny remont w 2025 roku, obejmujący wszystkie instalacje, stolarkę, okna, podłogi oraz nowy układ funkcjonalny. Lokal nie był zamieszkany po remoncie.

Wykończenie prowadzone było z wyraźnym naciskiem na materiał, rzemiosło i spójność stylistyczną:


  • indywidualnie projektowana, wykonana na zamówienie zabudowa meblowa z dębu,

  • kamienne blaty kuchenne i parapety,

  • łazienki wykończone w technice microcementu,

  • wysokie sufity (ok. 3 m) i nowe duże drewniane okna,

  • nowoczesne, dyskretne oświetlenie podkreślające strukturę wnętrz.


W apartamencie znajdują się trzy oryginalne zabytkowe piece kaflowe - starannie rozebrane i ponownie złożone przez specjalistów. Pełnią funkcję dekoracyjną, budując wyjątkowy charakter przestrzeni i nawiązując do historii tego miejsca.

Wybrane zdjęcia mają charakter wizualizacji koncepcyjnych (AI) i służą prezentacji możliwego sposobu aranżacji przestrzeni.

Apartament pozostawia nowemu właścicielowi pełną swobodę w kształtowaniu charakteru wnętrza - to przestrzeń, która nie narzuca gotowych scenariuszy, lecz pozwala dopasować ją do własnego rytmu życia, estetyki i potrzeb.

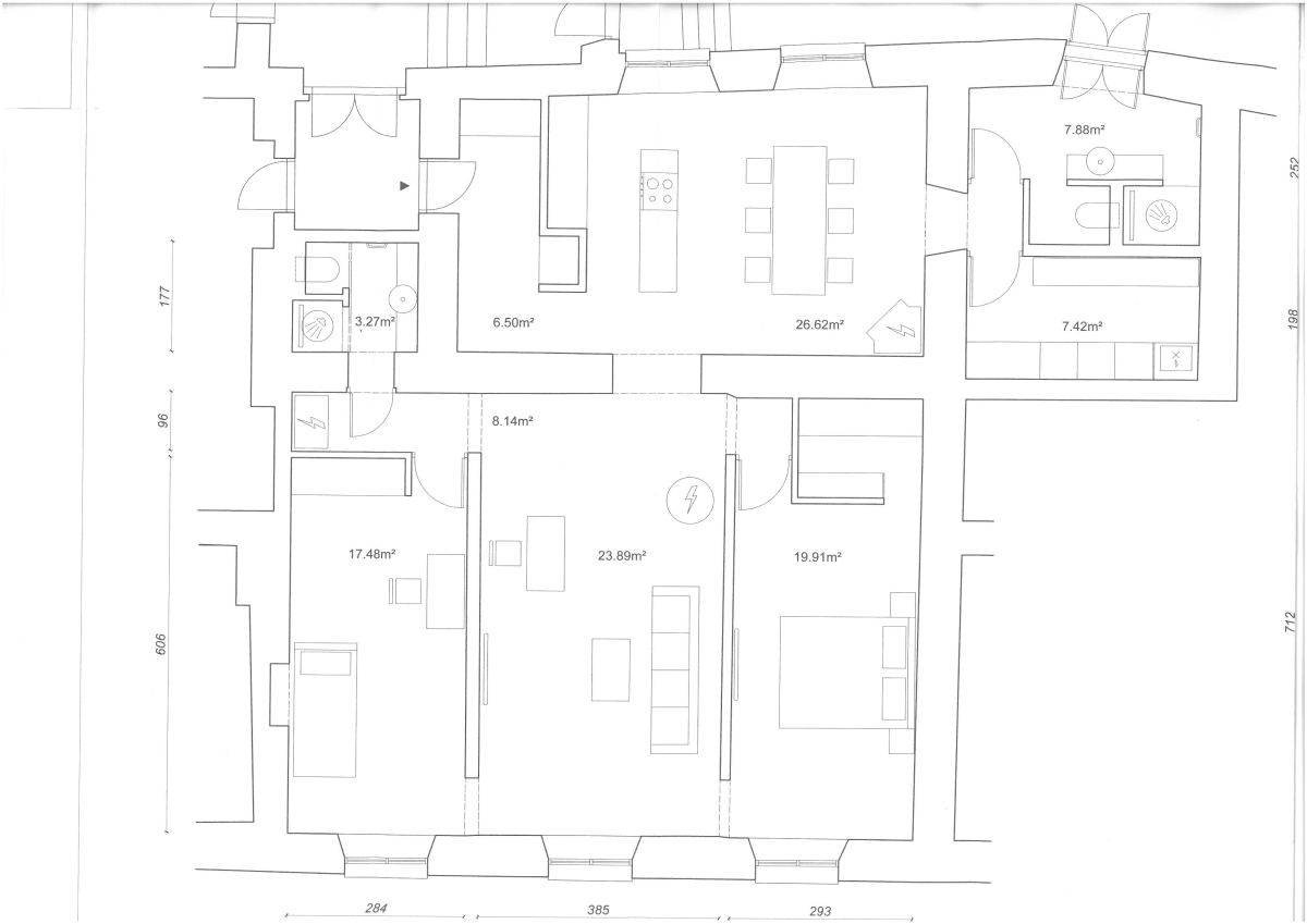
Układ i funkcjonalność
Powierzchnia: 124,44 m² | 2. piętro 

Układ apartamentu jest elastyczny i pozwala na różne scenariusze użytkowania:
• przestronna oddzielna kuchnia z jadalnią,
• trzy niezależne pokoje (do dowolnej aranżacji: salon + dwie sypialnie, gabinet, pokoje gościnne),
• dwie łazienki (obie z WC i prysznicem),
• garderoba / pomieszczenie gospodarcze,
• ewentualnie drugie niezależne wejście od strony galerii.
Okna wychodzą na zachód, na wewnętrzny dziedziniec oraz na piękną elewację zabytkowej kamienicy Pałacu Wodzickich i Bibliotekę Książąt Czartoryskich, co daje rzadkie w centrum połączenie światła, widoku i prywatności.

Komfort techniczny
• ogrzewanie gazowe - nowy piec Vaillant,
• ogrzewanie podłogowe w obu łazienkach,
• wentylacja grawitacyjna,

Status prawny i koszty
• pełna własność, uregulowany stan prawny, brak obciążeń w księdze wieczystej,
• czynsz administracyjny: ok. 700 zł,
• media (woda, prąd, gaz) - wg zużycia,
• parkowanie: abonament mieszkańca.

W cenie pozostaje stała zabudowa meblowa oraz piece kaflowe.

To apartament dla osoby lub rodziny, która:
• szuka indywidualnego, gotowego wnętrza w ścisłym centrum Krakowa,
• ceni jakość materiałów, spokojną estetykę i architekturę z historią,
• rozważa także inwestycję pod wynajem premium, gdzie standard, metraż i adres tworzą spójną całość.

Ten apartament nie konkuruje krzykiem ani modą. Jego siłą jest cisza, proporcja i konsekwencja - współczesne wnętrze osadzone w zabytkowej architekturze, gotowe, by stać się czyimś stałym adresem lub bezpieczną, długoterminową inwestycją w centrum Krakowa.

Możliwość organizacji spotkania jedynie poprzez kontakt z agentką nieruchomości. Zapraszam do kontaktu.

WSPÓŁPRACUJĘ!
Jesteś Pośrednikiem? Masz Klienta zainteresowanego zakupem takiej nieruchomości? ZAPRASZAM do WSPÓŁPRACY - to korzystne dla naszych klientów. Wszystkie moje oferty dostępne są również w ogólnopolskim systemie współpracy pośredników MLS mls.org.pl

Nieprawidłowy adres E-mail