Widokowa działka z PnB na "Dom w Alpinach"

Działka (Rolna) na sprzedaż
157 000,00 PLN , Pow. 1 310 m2
Drukuj ofertę
Drukuj ofertę
Typ nieruchomości:
Działka
Powierzchnia:
1 310 m2
Typ transakcji:
sprzedaż
Lokalizacja:
Zamłynie
Numer oferty:
781533
Cena za m2:
119,85 PLN
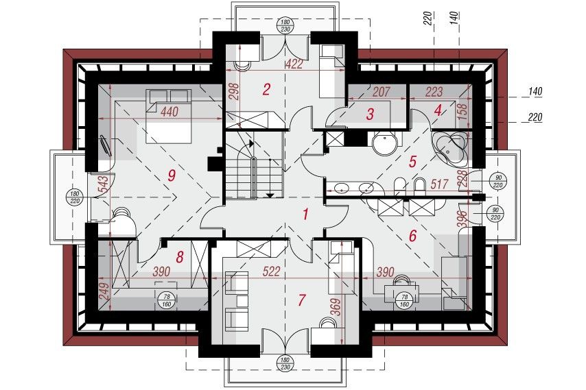
Na sprzedaż działka rolna z wydanym i obowiązującym pozwoleniem na budowę.
Działka o powierzchni 13,10 ar z pozwoleniem na budowę domu jednorodzinnego - projekt "Dom w Alpinach" Archon. Wg obowiązującego mpzp - działka jest rolna, więc można realizować póki co tylko projekt z wydanym PnB.
Media: prąd w działce, woda i gaz na sąsiednich działkach.
Dokumentacja dostępna do wglądu.

Możliwość organizacji spotkania jedynie poprzez kontakt z agentką nieruchomości. Zapraszam do kontaktu.

WSPÓŁPRACUJĘ!
Jesteś Pośrednikiem? Masz Klienta zainteresowanego zakupem takiej nieruchomości? ZAPRASZAM do WSPÓŁPRACY - to korzystne dla naszych klientów. Wszystkie moje oferty dostępne są również w ogólnopolskim systemie współpracy pośredników MLS mls.org.pl

Nieprawidłowy adres E-mail